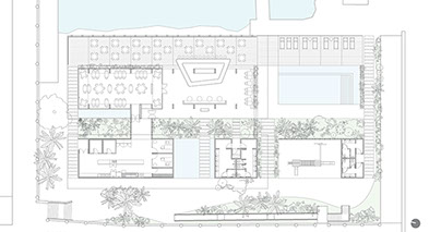
Restaurant & Dock at Marina Puerto del Rey

 

Location: Ceiba, PR

Client:   Putnam Bridge funding

Design:   2015

 

RFP response w/Toro Arquitectos

 

archUD and Toro Arquitectos have had a long-term collaboration in various projects since 2005 and our response to an invitation from Putman Bridge provided an inspiring conceptual design to build a new Marina restaurant and a new Dock House in Ceiba, PR. A large cantilever roof gracefully played with sailboats and sport fishermen hulls while embracing trade winds from the east. RFP was delayed/cancelled after issuance and initiative never materialized as originally conceived.