Olein Recovery Master Plan

 

Location:  Yabucoa, PR

Client:  Olein Recovery Corporation

Year:   2017-2018

 

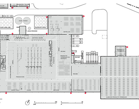
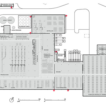
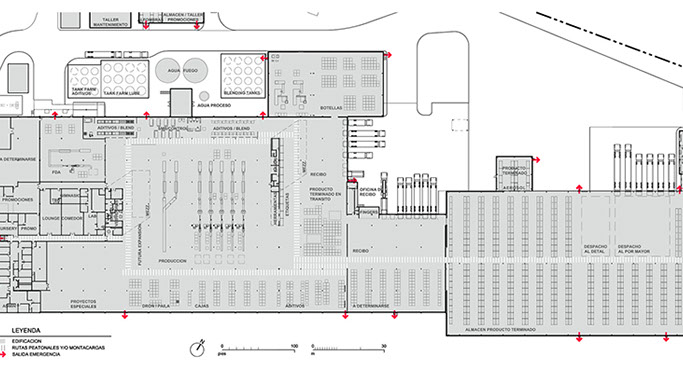
This project is an example of the use of our Industrial planning services as a tool to address growth challenges and operational inefficiencies of a local oil-recycling refinery, manufacturing and distribution facility which suffered mayor damages due to hurricane María. Two properties in Yabucoa with a 4.5 mile distance among them thoroughly evaluated to optimize and reconfigure production and distribution facilities, including transfer logistics among them.

Associated architectural concepts included the “Brava shop” and an Activity Center for employees and visitors based on Olein's distinctive branding strategy.